Youth Loft Complex
       
     
 Perspective View
       
     
 Front View
       
     
 Elevation
       
     
 Elevation
       
     
 Program Axon
       
     
 3rd Floor Plan
       
     
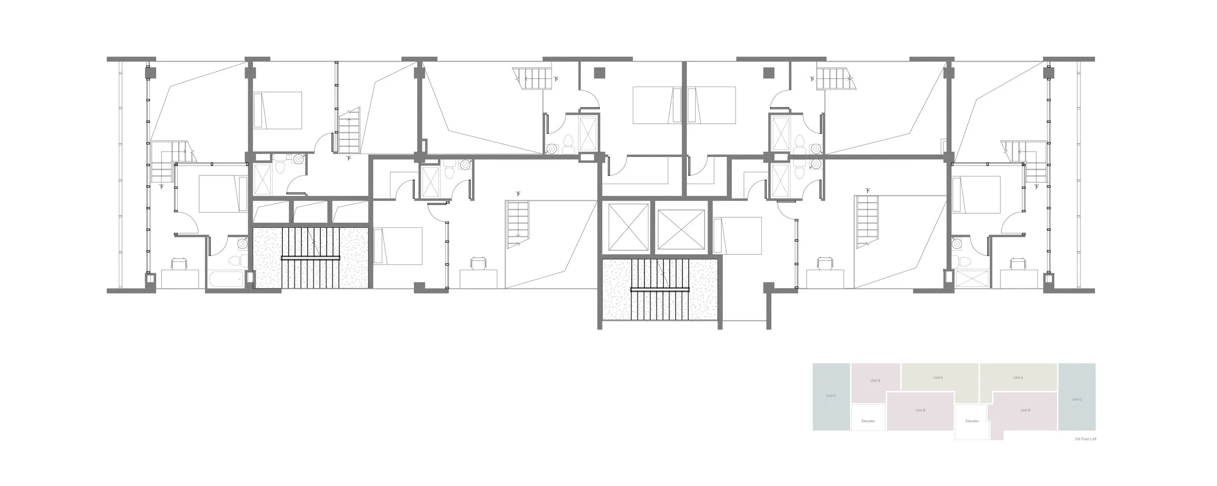
 3rd Loft Floor Plan
       
     
Youth Loft Complex
       
     
Youth Loft Complex

Type: Residential Complex Size: 54,000 Sq ft.

Location: Guizhou, China

Time: 03/2018 Status: Concept Design

Team: Brad Li, Yihan Xu

 Perspective View
       
     

Perspective View

 Front View
       
     

Front View

 Elevation
       
     

Elevation

 Elevation
       
     

Elevation

 Program Axon
       
     

Program Axon

 3rd Floor Plan
       
     

3rd Floor Plan

 3rd Loft Floor Plan
       
     

3rd Loft Floor Plan