Type: Two-Family Townhouse
Size: 5,100 sqft.
Location: Brooklyn, New York
Status: Complete. Time: 08/2023
Team: Brad Li, Cecilia Luo, Jenny Lee
Type: Two-Family Townhouse
Size: 8,300 sqft.
Location: Brooklyn, New York
Status: Proposed. Time: 10/2019
Team: Brad Li, Rick Gee
Original Building
Proposed
Type: Bar & Restaurant
Size: 3,200 sqft.
Location: Brooklyn, New York
Status: Complete. Time: 08/2018
Team: Brad Li, Jun Su
MoCA Westbury
Type:Bar & Restaurant Size: 12,000 sq ft.
Location:Long Island, New York
Time: 08/2017 Status: Completed
Team: Brad Li, Tom Xia, Yilin Yan,
Type: Residential Complex
Size: 54,000 Sq ft.
Location: Guizhou, China
Status: Concept Design
Time: 03/2018
Team: Brad Li, Yihan Xu
Type: Exhibition Pavilion
Size: 4,900 sq ft.
Location: Chengdu, China
Time: 09/2017 Status: Complete
Team: Brad Li, Arif Javed, Ivan Chen, Spring Wu, Jun Su, Fan Xu
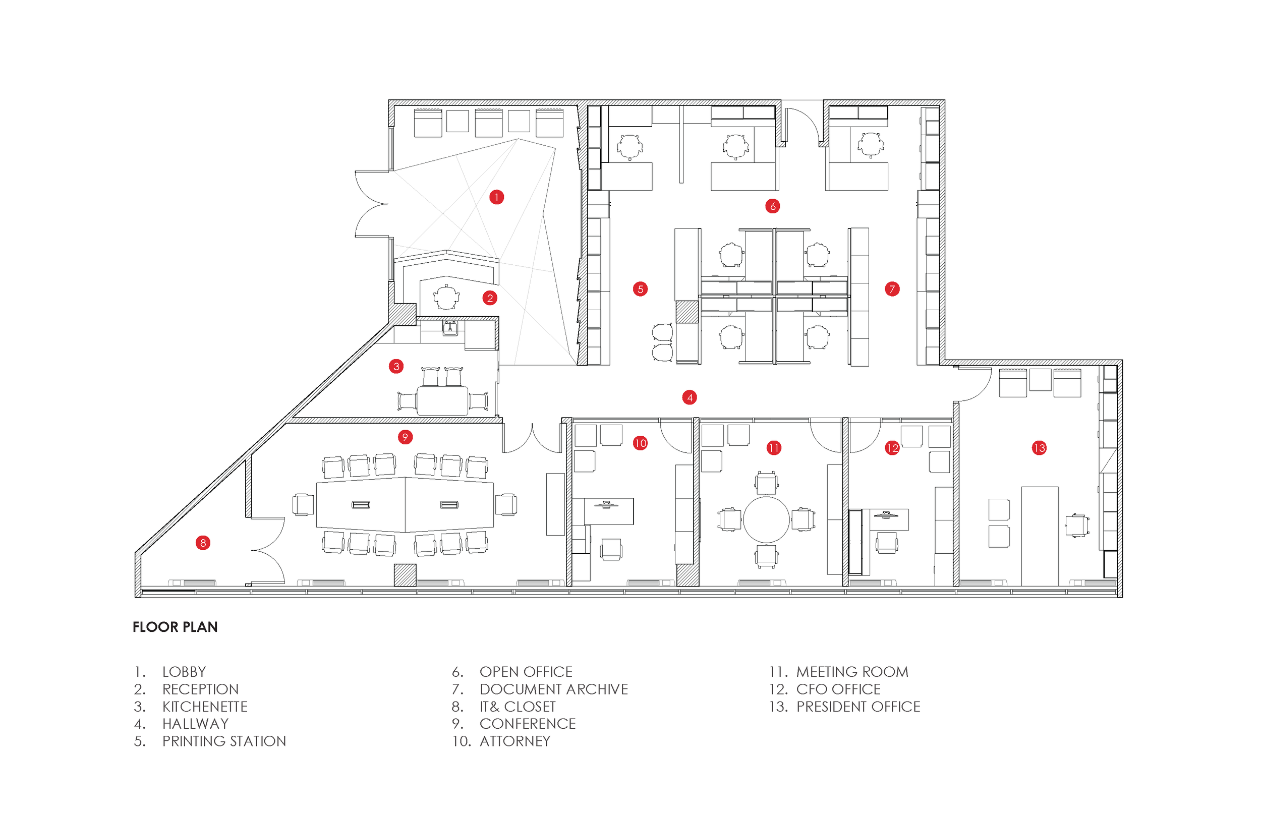
Type: Workplace
Size: 3000 sqft.
Location: Long Island, New York
Status: Complete. Time: 04/2021
Team: Brad Li, Gong Chen
RCP Plan
Type: Retail Store
Size: 800 sqft.
Location: Shanghai, China
Status: Complete. Time: 08/2019
Team: Brad Li, Ivan Chen
Store Front
Interior View
Interior View
Interior View
Interior View
Floor Plan