LADS
LI & ASSOCIATES DESIGN STUDIO
WORKS
Brooklyn Townhouse
Asian Fusion Bistro
Miss Noodles Restaurant
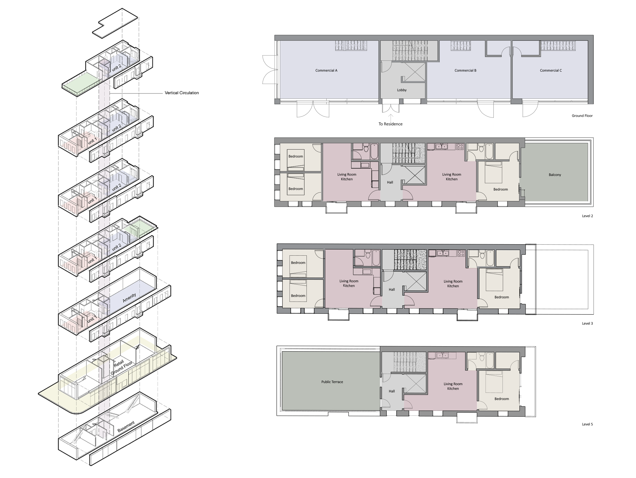
Brooklyn Multi-Family
Youth Loft Complex
Exhibition Pavilion
GruTech Retail Store
ABOUT
CONTACT
WORKS
Brooklyn Townhouse
Asian Fusion Bistro
Miss Noodles Restaurant
Brooklyn Multi-Family
Youth Loft Complex
Exhibition Pavilion
GruTech Retail Store
ABOUT
CONTACT
LI & ASSOCIATES DESIGN STUDIO
231 Front Street, suite 205
Brooklyn, NY, 11201
United States
917-338-0689
+
+
Original Building
+
Proposed
+